Vendita Casa indipendente

  1. Home
  2. Dettagli Immobile

Soluzione indipendente in ottimo stato

€240.000

Rif. 2260/26 Via Armando Fabi, Frosinone FR 03100

Anteprima


Camere da letto

Camere: 3

Piano

TERRA° Piano

Spazio

140 m2

Tipo Immobile

Casa indipendente

Garage

Garage: SI

Bagni

Bagni: 2



Riguardo l'immobile

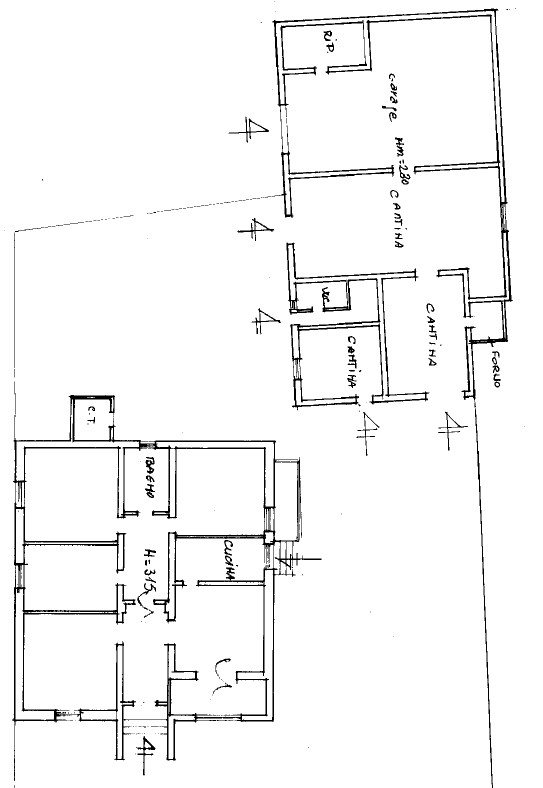
In zona semicentrale e a pochi minuti dalla Monti Lepini, proponiamo in vendita soluzione indipendente in ottimo stato di manutenzione e con accesso diretto dalla via principale. La proprietà comprende la porzione abitativa di circa 140 mq composta da : Ingresso, ampia zona living con cucina a vista e con accesso diretto su porticato esterno, 3 stanze molto ampie, un wc a servizio della zona giorno e uno nella zona notte. Inoltre l'immobile gode di una porzione esterna coperta per circa 100 mq oltre ad ampio giardino pertinenziale per poter godere dello spazio esterno.

Caratteristiche

  1. Box: NO
  2. Terrazza: SI
  3. Spazio Esterno: SI
  4. Balcone: NO
  5. Ascensore: NO
  6. Riscaldamento autonomo: SI
  7. Giardino: SI ESCLUSIVO
  8. Condizioni: RISTRUTTURATO
  9. Numero vani: 8
  10. Posto auto: SI
  11. Classe Energetica: G
  12. Tipo di costruzione: SIGNORILE
  13. Lati scoperti: QUATTRO
  14. Cantina o soffitta: SI
  15. Piano: TERRA
  16. Stato immobile: LIBERO

Richiedi Informazioni

Chiama ora 0775 270 716 oppure Scrivici su WhatsApp
×
Homelist