Vendita Appartamento

  1. Home
  2. Dettagli Immobile

Appartamento ristruturato in centro

€148.000

Rif. 1906/25 Via Brighindi,43, Frosinone 03100

Anteprima


Camere da letto

Camere: 2

Piano

Non Inserito

Spazio

70 m2

Tipo Immobile

Appartamento

Garage

Non Inserito

Bagni

Bagni: 2



Riguardo l'immobile

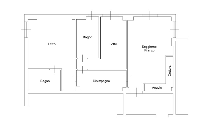
Appartamento in Vendita - Frosinone Scopri questo splendido appartamento situato nella zona alta di Frosinone, a pochi passi dal palazzo della provincia. Recentemente ristrutturato nel 2019, ogni dettaglio è stato curato con finiture di alta qualità, rendendo questo spazio non solo elegante ma anche estremamente confortevole. L'appartamento offre un ingresso diretto sulla zona giorno, dotata di un moderno angolo cottura, perfetto per accogliere amici e familiari. La zona notte è sapientemente isolata dalla zona giorno, garantendo privacy e tranquillità. Composto da due stanze da letto, una matrimoniale e una singola, entrambe con bagno privato, questo appartamento è ideale per famiglie o per chi cerca un ambiente esclusivo. Gli armadi a muro e il corridoio di servizio offrono ampio spazio per riporre oggetti e mantenere l'ordine. Tra i comfort inclusi, troviamo un impianto di riscaldamento a pavimento, aria condizionata, tapparelle motorizzate in alluminio e infissi a taglio termico che assicurano un ottimo isolamento. Inoltre, l'ascensore facilita l'accesso all'unità e il box auto incluso nel prezzo rappresenta un ulteriore vantaggio. Non perdere l'occasione di vivere in un appartamento nuovo, dove ogni dettaglio è pensato per il tuo benessere!


Richiedi Informazioni

Chiama ora 0775 270 716 oppure Scrivici su WhatsApp
×
Homelist