Vendita Appartamento

  1. Home
  2. Dettagli Immobile

Appartamento con garage

€98.000

Rif. 1354/25 Via Murette, Alatri FR

Anteprima


Camere da letto

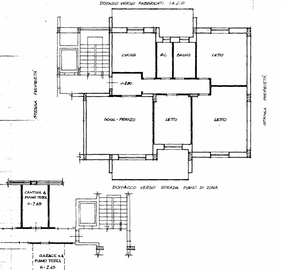
Camere: 3

Piano

2° Piano

Spazio

90 m2

Tipo Immobile

Appartamento

Garage

Garage: SI

Bagni

Bagni: 2



Riguardo l'immobile

A due passi dal centro, nelle immediate vicinanze di tutti i principali punti di interesse quali scuole, uffici, centri commerciali etc. proponiamo in vendita appartamento secondo piano non da ristrutturare di circa mq. 125, composto da due balconi, tre camere, 2 bagni, salone, cucina abitabile,cantina e garage, ascensore e corte comune.

Caratteristiche

  1. Box: SI
  2. Terrazza: NO
  3. Spazio Esterno: SI
  4. Balcone: SI
  5. Ascensore: SI
  6. Riscaldamento autonomo: SI
  7. Giardino: SI NON ESCLUSIVO
  8. Condizioni: BUONO
  9. Numero vani: 7
  10. Posto auto: SI
  11. Classe Energetica: G
  12. Lati scoperti: DUE PARALLELI
  13. Cantina o soffitta: SI
  14. Piano: 2
  15. Stato immobile: LIBERO

Richiedi Informazioni

Chiama ora 0775 270 716 oppure Scrivici su WhatsApp
×
Homelist